Habitat for Humanity operates on a minimal budget, but that does not stop it from continuing to improve the lives of less fortunate people. When the Brampton chapter of the organization conceived of this project they wanted to make a statement that a small budget did not preclude good design. The goal was to produce a house that could improve the lives of a family and the function of an abandoned, but important, community site.
From the beginning the project was charged with being:
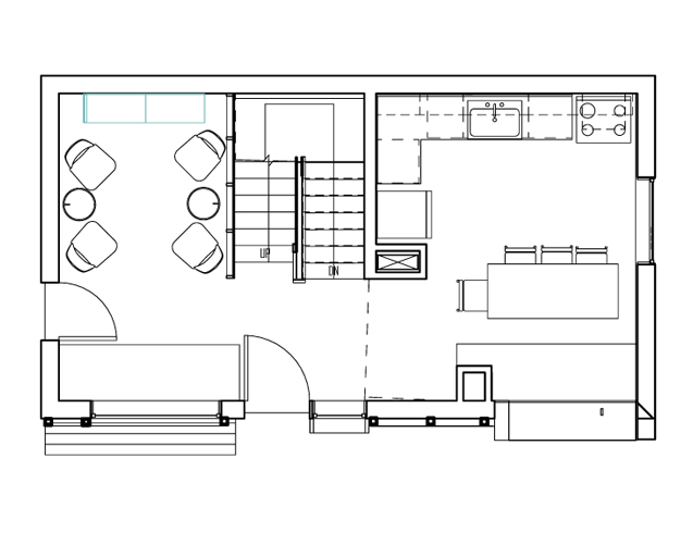
1.Efficient: By designing a house that could accommodate a family of six, in only 1200 square feet.
2.Economical: By reconsidering material choices to build for only $60-70/ square foot., while only operating on a $30/month budget for utilities.
3.Environmentally Conscious: By striving for LEED Gold and Energuide 85 Rating, as well as improving the community environment.
Efficiency was achieved by developing a centralized core which maximized the available living space. Cost savings were achieved by using off the self materials, such as plywood as both a structural and finish material. For the design team, “Environmental Consciousness” extended well beyond the LEED standards and extended to include community awareness. This was accomplished by making the site aimed to be more porous, both physically and socially. The site plan removed the asphalt that once covered the entire site and replaced it with pavers and vegetation that will help absorb and rain and creek run off. Socially, the project strengthens its community connection by formalizing the path through the site, facilitating access to public transportation, while the new gardens provide a place for community gatherings.











